Prices, options, and floorplans subject to change without notice. Images displayed may not be of actual display homes.
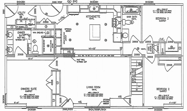
Master-Craft Evolution Series Taylor III, 30 x 50, 1500 Sq. Ft., 3 Bedroom, 2 Bath.
This home is displayed with the following options:
- Quartz Countertop Kitchen Island
- Quartz Countertop Kitchen
- Quartz Backsplash Kitchen
- Hi Arc Industrial Black Kitchen Faucet IPO Standard
- Privacy Lock IPO Standard — All 3 BRS
- Locksets-Black Lever w/Matching Hinges & Hardware
- Mirror Homestead 1 1/2” Flat Stock Wood Framed IPO Standard – Both Baths
- S/S Undermount Single Bowl Kitchen Sink for Solid Surface Replacing Standard
- Leviton VTP-24 Programable 24 Hour timer for Bath Vent Fan – Both Baths
- Black 13” 2 Bulb Ceiling Light — Additional Stairs
- Black Paddle Fan with Light & Wall Control Switch
- Additional 5” LED Spotlight over Shower or Tub/Shower (1)
- Snowbound Homestead Series Maple Base, OH & Island Kitchen Cabs.
- Mindful Grey Cabinets – Both Baths
- 2022P Hardware—Kitchen, Island, & Both Baths
- Hood System – Ducted Hood System to Exterior – Above Range
- Countertop Microwave Built in Trim Kitchen
- Microwave 2.2 CUFT Stainless
- Formica 180FX Laminate Countertop – Both Baths
- TV Cable Hook up (1) – Living Room
- Additional Interior Receptacle(1) – Living Room
- Metal Duct for Central Cold Air Return
- SS Upgrade Appliance Pkg. w/Std. Chimney Hood
- Floor Vinyl Replacing Standard Carpet – Foyer
- Taylor III Dining Room Ship Lap Bench Seat Package
- Stairs-Raw Builder Grade w/2/6 Solid Core Door w/Sweep at Bottom
- VIVA Series Laminate Shelving IPO Standard Pantry/Linen – Mbath
- 60” Black Roller Shower Door w/Black Corner Shelves – Mbath
- S/L Congoleum Vinyl to Vinyl Transition Molding Trim
- 7/12 Storage Truss 24” OC w/decking
- 4 Piece Soffit, Fascia, F Channel & Crown Molding
- Portsmouth Shake Double 7” SS Premium Siding – Dormer
- Board & Batton Siding – Dormer
- Omit Std. Shutter FDS – Living Room
- 5” Lineal Trim White 3 – Living Room
- 2436 Heritage Vinyl SH – Utility Room
- 2458SH/3658P/2458SH Heritage Picture Window
- Omit RCDS Fiberglass 2-Panel Door – Kitchen
- RCDF 3/0 x 6/8 Full Clear Door – Additional Kitchen
- Paint Exterior Door Slab Only – Front Door
- 3” PVC Pipe w/Junction Box for Radon
- Additional 10’ of Wire for Extending Electric Box
- Electric Door Chime w/Button – Front Door
- All LVP Is 7” x 48”
- Install T Bar & Hall Bath Door
- Cabinet Northpointe
- Full Tile Backsplash
- Upgrade Stainless Appliance Pkg.
- Single Bowl Farmhouse Sink
- U189 & B21 ILO B39
- (1) Fan Box No Fixture 2 LR
Standard Features
Master-Craft Liberty Series
EXTERIOR & CONSTRUCTION
- 30 lb. Roof Load
- 5/12 Nominal 24″ OC
- Roof Sheathing 7/16″ OSB w/H-Clips
- Architectural Shingles
- Overhangs: 8″ Front & Rear (Fixed), 8″ on Gables Ends
- Exterior Walls: 2×6 at 16″ OC
- Sidewall & Endwall Sheathing: 7/16 OSB
- Floor Joists: 2×10 at 16″ OC
- Decking: 19/32″ OSB
- White Drip Edge, Soffit, and Fascia
- Siding: 4/4 Shiplap
- Frost Proof Faucet: One Shiploose
- House Wrap: Standard
- Shutters: 15″ on Front Door Side of Home
- Windows: Low E/Argon Gas Filled White Single Ung Vinyl Window
- Front Door: 3/0x6/8 FBGL Front Door w/Peep & Wood Jambs
- Rear Door: 3/0x6/8 FBGL Front Door w/Wood Jambs
- Exterior Locksets: Nickel
- Exterior Deadbolts: Nickel
- Exterior Light: Front/Rear Door, Patio Door – Per Plan
INSULATION
- Ceiling Insulation: R-30
- Exterior Walls: R-19/li>
INTERIOR
- Interior Partitions: 24″ OC
- Walls: 1/2″ Drywall Smooth
- 8′ Sidewall w/Smooth Flat Ceiling
- Carpet Pad: 3/8″ Rebond (5lb)
- Vinyl Floor Coverings in Wet Areas
- Carpet: 16oz
- Interior Doors: White 2-Panel Raised Square w/3 Mortised Hinges
- 2/6 T/O (3/0 Per Plan)
- Furnace Door: White 2-Panel Door w/Grille
- Interior Molding: 2″ Case
- Base Molding: 3-1/4″
- 3-5/8″ Crown Molding T/O
- Wire Shelvew: Closet, Pantry, Linen
- Wire Shelf Over Washer/Dryer Area
- Interior Lockset: Nickel
- Privacy Locks: Bath Doors
- Ceilling Light: LEDs in Hall, WIC, Utility, and Pantry
- Switched Recepts Bedrooms
- Hanging Light – Dining/Breakfast Areas
KITCHEN
- Wire & Receptacle for Range: 220V
- 36″ Stainless Steel Chimney Style Range Hood
- Dishwasher: Prep for Dishwasher
- Countertop: Laminate
- Backsplash: Matching Laminate
- Edging: Square Edge
- Kitchen Sink: 6″ Stainless Steel Double Bowl
- Cabinets: Legato Series Cabinets from Legacy Grafted Cabinets
- 30″ Wall Cabinets Standard w/Crown
- Soft/Self Close Adjustable Hinge Cabinet Doors/Drawers
- Adjustable Shelves
- Extra Deep Drawer Boxes w/Opt Drawer over Door Available
- Kitchen Faucet: Single Lever Faucet – Chrome
- Standard Series Cabinet Pulls
BATHS
- Bath Vanity Faucet: Center-set Lav Faucets – Chrome
- Furniture Style Vanity – Master Bath
- Shower Faucet: Chrome
- Tub/Shower Faucet: Chrome
- Pencil Edge Mirror
- Lav Bowls: Porcelain w/Pop Up Drain Assembly
- Fiberglass Tubs & Showers Per Plan
- Elongated Porcelian Water Closets
- Vanity Lights: 2 Bulb (Nickel)
- Bath Vanity Fans: Fan w/Light
UTILITIES
- Exterior GFCI Receptacle – 2 Standard
- Washer Hookip Wire & Plmb Washer/Dryer
- Wire for Dryer: 220V w/Standard Utility
- Exterior Dryer Vent Kit
- “Toggle” Switched T/O
- Thermostat
- 200 AMP Panel Box: Installed w/White Metal Door
- Individual Shut Off Valves at Sinks & Toilets
- Central Water Shut Offs for Tubs and Showers
- HVAC – Boots and Floor Registers
MISCELLANEOUS
- Shingle over ridge vent
















