Prices, options, and floorplans subject to change without notice. Images displayed may not be of actual display homes.
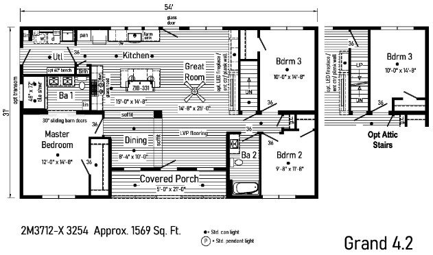
Manorwood Grand 2M3712 31×56 3 Bedrooms, 2 Baths
This home is displayed at Duncansville with the following options:
- Superior Wall Blocking
- Chase for Future HVAC per print
- Stretch Home Length 2’ Making 56’ Long
- Attic Stairs with Door at Bottom
- Registers & Boots Installed—Floor Registers
- Gooseneck Pulldown Kitchen Sink Faucet
- Radon Vent-per print
- 1/4 Lite Craftmans 2-Panel Clear-FD
- 1/2 Lite 2-Panel Clear Glass-UR
- Transom Window Over Shower-BA1
- 8’6” Flat Smooth Ceiling
- 200 Amp Panel Box –Installed White Cover—UR
- TV Jacks (2)-GR & MBR
- Junction Boxes (2) w/Conduit for HDMI & (2) Recepts –at Fireplace
- Dimmer Switches (3) -Island, DR, & Kitchen Can lights
- 8 Wire w/Setback Thermo for A/C
- 3 1/2” White Lineals (9)
- 12/12 Roof w/Attic 24” OC 40#
- Market Square Siding Upgrade
- Vertical Siding in Peak
- 12/12 22” Flush Dormer w/Window
- 6’ Doghouse dormers (2)
- Vented Rangehood to Outside
- Built in Microwave Over with Trim Kit
- OH Cabinets 48” to Ceiling
- Under Cabinet Moulding for Kitchen Cabinets
- Pantry/Linen Plant Made 18” Extra BA2
- Drawer Base IPo Std. BA 2
- Cabinet Color Change in BA 1 & BA 2
- Crescent Edge Countertop T/O
- Full Ceramic Tile Backsplash to Ceiling Kitchen
- Interior Solid Core w/Sweep & Weather Stripping Replacing Std. Basement Door
- Window Sills Painted White (3) Kitchen Windows ONLY
- Slide Rods—In All Closets
- Ship Lap Wall with LED Fireplace
- 2017 NEC
- 2018 IRC
- 2018 IECC
Standard Features
Manorwood Homes Grand Series
FLOOR CONSTRUCTION
- 2×10 floor joists 16″ O.C.
- 3/4″ T&G OSB floor decking
- Insulated Basement Stairwell
EXTERIOR WALLS
- 2×6 studs on 16″ centers
- Double 2X6 Top Plates
- 8′ wall height
- Structural OSB sheathing
- Vinyl Siding
- Whole House Wind Wrap
INTERIOR WALLS
- 2X4 Interior Wall Studs 24″ O.C.
- 2×4 marriage wall studs on 16″ centers with OSB sheathing
- Primed 1/2″ smooth drywall throughout
ROOF AND CEILING
- 8′ Flat ceiling
- 5/12 roof pitch with 12″ Eaves
- Saddle Roof and Porch (Select Models)
- Pre-engineered 40# roof trusses on 24″ centers
- 90 MPH Wind Exposure C Wind Load Design
- Ice Shield
- Structural OSB roof decking
- Shingle over ridge vent ventilation
- Vented vinyl soffit
- Aluminum fascia
- Aluminum drip edge on all roof edges
- Smooth drywall ceiling
- Architectural shingles (Limited Lifetime Warranty)
- Synthetic Roof Underlayment
INSULATION
- Exterior Walls R-23 fiberglass insulation
- Ceiling R-38 Fiberglass Batt Insulation
FLOOR COVERING
- Congoleum vinyl flooring
- 25 oz. Carpet with Stain Protector
- 5# Rebond carpet pad
- Floorte Pro Series 7 (per print)
EXTERIOR DOORS AND WINDOWS
- 3/0 x 6/8 6-Panel Fiberglass Door with Nickel Hardware & Composite Jambs at Front and Rear Primed White
- Door Pans on Exterior Doors
- Low E Vinyl Insulated Single Hung Argon Filled White Windows – Mulled Where Applicable
- Front & Rear Door KwikSet Lockset with Smart Key
- 15″ raised panel shutters on door side
- Full View Exterior Door with Grids at Great Room
INTERIOR DOORS AND TRIM
- 2-Panel Painted White Interior Doors w/ Lever Passage Sets and 3 Mortise Hinges
- 36″ Interior Doors – Where Available
- Privacy locks on bedroom and bath doors
- Door stops
- White wood colonial Moulding Package
- Wire shelving all closets and washer/dryer area
- Brushed nickel hardware
KITCHEN
- 3/4″ Overlay Classic Craft Cabinetry – KCMA Certified
- Hardwood 5-Piece French Country Oak or Barnwood Oak Mission Flat Panel Doors
- Craftsman Cabinet Crown Moulding
- 42″ Height Kitchen Overhead Cabinets
- Dovetailed Drawers
- Soft Close Undermount Drawer Guides
- 100# Undermount Drawer Guides
- Laminate Countertops
- Black Stainless Farmers Kitchen Sink
- Black Metal Faucet with Sprayer
- Black Transitional Cabinet Pulls
- Power Range Hood
- Corner Base Lazy Susan (Where applicable)
- USB Receptacle II
- Soft Close Drawers
- Onyx/Black Stainless Appliance Package
- Full Ceramic Backsplash – Range Wall
- Single Row Backsplash – Window Wall
- Euro Glass and Black Range Hood
BATHS
- Black Metal Faucets
- Anti-scald Valves for Showers and Tubs
- Laminate Countertops
- China Lavatories
- Elongated Toilets
- Lighted Exhaust Fans with Insulated Ducts
- Black Vanity Lights
- 60″ One piece Fiberglass Tub/Shower
- 4′ x 6′ Ceramic Shower
- Double Bowl Bath Vanity
- Framed Mirrors
- Linens with Drawers (where available)
ELECTRICAL
- 200 amp electrical service with 40/40 panel box
- (2) GFI exterior receptacles with in use covers
- Craftsman Light at Front Exterior Door
- Patina Lantern Light at Rear Exterior Door
- Recessed LED Lighting T/O (Excludes Bedroom Ceiling Lights)
- 2 Pendant Lights over Island
- Smoke detectors with battery back-up
- Wire for electric range
- Carbon Monoxide Detector(s)
- Ceiling Fan in Great Room
- Electric Doorbell at Front Door
PLUMBING
- PEX water lines stubbed through floor
- Drain, Water and Vents Stubbed Through floor
- Shut Off Valves for all Sinks, Lavatories and Toilets
- Plumb, Wire and Vent for Washer/Dryer (Per Plan)
- Oetiker Clamps





























