Prices, options, and floorplans subject to change without notice. Images displayed may not be of actual display homes.
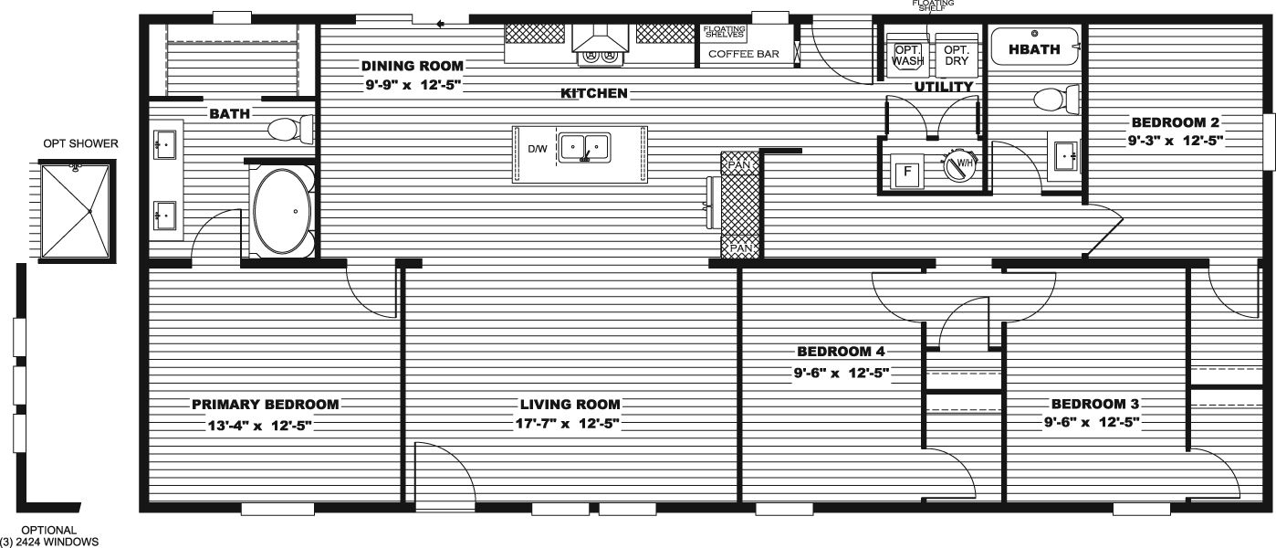
Clayton Epic Experience Series Expedition, 28 x 60, 1580 Sq. Ft., 4 Bedroom, 2 Bath.
This home was displayed with the following options:
- PRICE INCLUDES HEAT PUMP – E-Built Unit – Forced Option with Electric Furnace
- Crtd Arch Landmark 30 Year Shingles
- 2×6 Exterior Walls 16” OC – Forced Option
- Additional Brake Axle – Forced Option
- 6” Jamb on Front Door – Forced Opt. w/2×6 Exterior Walls
- 6” Jamb on Rear Door – Forced Opt. w/2×6 Exterior Walls
- Wire & Brace for Ceiling Fan – LR
- A/C Make Ready Must Be within 25’ of an Exterior Recept. Forced Option
- Addt’l Combo Carbon monoxide/smoke detector within 10’ of BR doors
- Combo Smoke/CO detector ipo std. smoke detector within 10’ of BRS
- 60” Fiberglass Tub – BA2 IPO Steel – Forced Option
- HUD Label – Forced Option
- Optional Colonial Exterior Package
- Northeast Package – Forced Option
Standard Features
Clayton Epic Series (Journey & Experience)
EXTERIOR FEATURES
- Full OSB Wrap with House Wrap
- 8′ Sidewalls with Flat Interior Ceilings
- Rip-Preventing Bottom Bard
- Decorative Exterior Lantern Lights Front and Rear
- Standard Dormer on Multi-Sections
- Choice of (3) Exterior Designs
FLOORS
- 16″ On Center 2×6 Floor Joist
- Upgraded Lux Linoleum Throughout
WINDOWS AND DOORS
- 36×80 Cottage In-Swing Rear Door
- 36×80 Craftsman-Style In-Swing Front Door
- Lux Argon Gas Low-E Thermo-Pane Windows
- 30″ Raised Two-Panel Interior Doors
- Full Double Metal Hinges on Interior Doors
ROOF/FRAME
- Solid Steel I Beam with Full Length Outriggers
- Fully Vented Soffit & Ridge Vents
- 6 Pattern Shingle Fastening
PLUMBING
- Rheem 30AMP 40 Gallon Hybrid Heat Pump
- Water Heater
- Pfister Metal Faucets Throughout
- Water Shut-Offs at Plumbing Fixtures
- Whole House Water Shut-Offs
- Exterior Water Faucet on Rear
- Porcelain Sinks Throughout
- PEX Piping Throughout
HVAC
- Energy Star Rated
- Ecobee Smart Thermostat
- Upgraded Insulation Package
INTERIOR FEATURES
- LED Can Lights Throughout
- Switched Lights in Walk-In Closets
- Framed Decor Wall in Living Area
- DuraCraft Laundry Room Shelves
- Coffee Bar Area in Some Models
- Blak Decorative Cabinet Pulls Throughout
- 42″ DuraCraft Overhead Lined Cabinets
- Picture Frame Style DuraCraft Cabinet Doors
KITCHEN
- Samsung Smooth-Top Range and Side-by-Side Refrigerator with Water/Ice in Door
- Dishwasher Standard
- Kitchen Island Standard
- Double Bowl 8″ Deep Stainless-Steel Kitchen Sink
- Gooseneck Pfister Kitchen Faucet with Pull Out Sprayer
- Stainless Steel Designer Rangehood
- Drawer Bank on Each Side of Range
- Pot and Pan Drawers in Each Drawer Bank
- Fully Cabinet/Wall Encased Refrigerator
BATHS
- Cab Stile Mirror Trim
- Double Lavs in Primary Baths
- Furniture-Style Vanity
- 42″x60″ One Piece Fiberglass Soaker Tub/Shower














